Home

Artikler
Robot
Netværk
Tele
Installationer
Lys
Komponenter
Elektronik
Cases
Håndværk
Elektroteknik
Historien
Af interesse
Diverse
Opslag
Billedopslag
FAQ
Video
Links
Om

Tilpasset søgning

IT-systemjording

Dokument oprettet:24 Dec 2006
Senest ændret:24 Apr 2021
Forfatter:Cubus

IT-systemet er en af 3 systemjordinger, hvorved elektriske lav­spændingsnet udføres. De øvrige systemjordinger kaldes for henholdsvis TT og TN.

Et af de få steder i Europa, hvor IT-systemet er anvendt i større udstrækning, er i Norge. Ellers finder det primært anvendelse i enkelte installationer, eller evt i dele af en installation, i fx virk­som­heder, hospitaler, lufthavne mv.

IT-systemjording karakteriseres ved, at forsyningstrans­for­matoren, til forskel fra øvrige nævnte systemjordinger, er iso­leret fra jord, evt forbundet til jord gennem en større mod­stand (1000 ohm eller mere).

Hvorfor IT-systemjording?

Hovedmotivet for valg af IT-systemjording, i fx en virksomhed, er driftssikkerhed. Har en virksomhed en produktion, hvor et pludseligt nedbrud pga en elektrisk fejl er kostbar, kan IT-systemet vise sig fordelagtigt. En første isolations­fejl får nemlig ikke umiddelbart nogle følger. Først ved isolationsfejl nummer 2 kobler over­strøms­beskyt­telses­udstyr, eller en fejlstrømsafbryder, elektriciteten fra i fejlramte strømkredse. En indikation af optisk eller akustisk art ved første fejl gør, at produktionen kan afsluttes kontrolleret og den opståede defekt kan rettes ved førstkommende lejlighed.

Det elektriske system på skibe er af sikkerhedsmæssige årsager ligeledes baseret på et isoleret net. En uvarslet udkobling af fx et styremaskinanlæg ved manøvrer gennem snævert farvand kunne blive skæbnesvanger.

Elektriske fejl i form af direkte kortslutninger mellem spændingsførende ledere, eller ødelagte komponenter, kan IT-systemjording dog ikke råde bod på. Om IT-systemjording kan gøre en forskel i en given installation, må bero på, hvilken type fejl der typisk opstår.

Systemjordinger og første fejl

Både ved TT- og TN-systemjording resulterer 1. afledningsfejl i en øjeblikkelig afbrydelse af elektriciteten i den fejl­ramte strømkreds.
  • Ved TT-systemjording vil en elektrisk fejl i form af en afledning fra en fase til en udsat del (motorkapsling mv) resul­tere i en fejlstrøm med en strømstyrke, der typisk vil ligge et sted mellem 0,14 A og måske op til 20 A. Først­nævnte strømstyrke kunne finde sted, hvis overgangsmodstanden til jord for installationens jordelektrode var helt oppe på omkring 1666 ohm, mens sidstnævnte strømstyrke ville svare til en overgangsmodstand på omkring 10 ohm. Fejl­strøm­men vil fra fasen skulle passere gennem den udsatte del, videre gennem beskyt­tel­ses­ledere for endelig at nå installationens jordspyd og gennem jorden vandre tilbage til transformersta­tionen, hvis nulpunkt er forbundet til jord gennem en jordelektrode. Strøm­styrken er så lav, at overstrømsbe­skyt­tel­ses­udstyr som smelte­sikringer, auto­mat­sikringer eller maksimalafbrydere ikke er anvendelige som beskyttelse mod indirekte berøring ved automatisk afbrydelse af forsyningen. Afbrydes skal der imidlertid og det må en fejlstrømsafbryder tage sig af. Fejlstrøms­afbrydere fabrikeres med mærkeudløse­strømme helt ned til 0,01 A (10 mA).

  • Ved TN-systemjording vil fejlstrømmen i en lignende situation som nævnt ovenfor, kunne nå op på flere hundrede ampere, hvorfor fejlen umiddelbart vil kunne udkoble overstrømsbeskyttelsesudstyr. Fejlstrømmen vil føres tilbage fra brugsgenstanden via beskyttelsesledere, men i stedet for i installationen at ende i et jordspyd, vil fejlstrømmen blive ført direkte til transformerstationen ad en PEN-leder (TN-C system) eller en PE-leder (TN-S system). Der er ved en afledningsfejl i TN-systemet i virkeligheden tale om en kortslutning mellem fase og nul og derfor bliver fejlstrømmen så stor. Fordelen ved denne systemjording er, at der kan spares nogle fejlstrømsafbrydere. Med Sikkerheds­styrel­sens krav om supplerende beskyttelse med HPFI-afbryder i nye installationer pr 1. januar 2007 (SB-A6B) og i eksisterende installationer pr 1. juli 2008 (SB-A8) er denne fordel reduceret. I boliger har der i mange år været krav om HPFI-afbrydere, hvad enten der var tale om TT- eller TN-systemjording. IT-systemjording med isolationsovervågning er undtaget fra de nye krav.
Ved IT-systemjording sker der som nævnt ikke nogen udkobling af den fejlramte strømkreds ved 1. fejl. Ved en lignende hændelse, som nævnt i ovenstående to eksempler, hvor en fase ved en afledningsfejl får forbindelse til jordpotentiale, er der ikke umiddelbart basis for et fejlstrømskredsløb, da forsyningssystemet (nulpunktet i transfor­ma­tor­stationen) ikke er lagt til jord. Der vil nu alligevel gå en mindre strøm fra den fejlramte fase til de øvrige faser, hvilket blandt andet skyldes kabel­systemets kapacitanser til jord.

Ifølge SB-A6 § 413.1.5.3 skal følgende betingelse være opfyldt ved første fejl i et IT-system:

RA x Id ≤ 50 V
Produktet af summen af jordelektrodens overgangsmodstand til jord og modstanden i beskyttelseslederen til de udsatte dele RA, og fejlstrømmen ved den første fejl med ubetydelig impedans mellem en faseleder og en udsat del Id, skal være mindre end eller lig med 50 V. Man vil med andre ord ikke risikere, at der kan opstå berørings­spændinger i sy­stem­et på over 50 V ved den første fejl. Modstanden i beskyttelsesledere (fx 12,1 ohm pr km for 1,5 mm2 Cu) er alminde­ligvis ubetydelig i forhold til en jordelektrodes overgangsmodstand til jord, så formlen siger i høj grad noget om, hvilken over­gangsmodstand til jord, der er påkrævet, afhængig af størrelsen af den kapacitive jordslutningsstrøm, der opstår ved en afledningsfejl i installationen.

På en eksisterende IT-installation kan denne jordslutningsstrøm (ladestrøm) måles ved at lægge en fase til jord og måle den strøm der går gennem fejlstedet, en strøm der fx forøges kontrolleret ved hjælp af en variabel modstand. Målingen kan vise sig forskellig afhængig af, hvilken fase der lægges til jord.

Beregning af et isoleret nets kapacitive jordslutningsstrøm
Ved en IT-installation på tegnebrættet kan kablernes kapacitive jordslutningsstrøm IC ved en afledningsfejl beregnes.
IC = 3·IC0
IC0 er
den strøm, der går fra en fase til jord i et ikke fejlramt ledningssystem som følge af kapacitive forhold. I det øjeblik en fase lægges til jord stiger spændingsforskellen mellem en ikke fejlramt fase og jorden med kvadratrod 3 (fra fase- til netspænding). Strømmen mellem en ikke fejlramt fase og jorden stiger følgelig også med kvadratrod 3. De to strømme mellem henholdsvis den fejlramte fase og de to ikke fejlramte faser har en indbyrdes vinkel på 60 grader og den resul­terende strøm er derfor kvadratrod 3 større. Alt i alt ender regnestykket med udgangspunktet IC0 multi­pliceret med kva­dratrod 3 to gange. Dette svarer til, at jordslut­nings­strømmen IC, som nævnt, er lig med 3·IC0

Et kabel kan fx jf datablad have en driftskapacitans C på 0,2 µF pr km (også benævnt synkronkapacitans eller dreje­strøms­kapacitans). Det er imidlertid nulkapacitansen C0, der har interesse.

For et kabel, der har en skærm omkring hver enkelt leder, er driftskapacitansen lig med nulkapacitansen.

For et kabel med fælles skærm omkring de spændingsførende ledere, er nulkapaci­tan­sen lig med det halve af driftskapacitansen. Øvrige andele af driftskapacitansen udgøres i dette tilfælde af kapaci­tanser mellem lederne indbyrdes. Et almindeligt installationskabel uden skærm hører snarere til sidstnævnte kategori fremfor førstnævnte og denne antagelse ligger til grund for nedenstående regnestykke.

Er der fx i et IT-system udlagt 10 km uskærmet kabel med en driftskapacitans på 0,2 µF pr km, må disse kabler i alt repræsentere en driftskapacitans på 2 µF og en nulkapacitans på 1 µF. Nulkapacitansen C0 repræsenterer følgende impedans XC0 ved 50 Hz:

XC0 = 1/(2 · π · f · C0) = 1/(2 · π · 50 · 1 · 10-6) = 3183 Ω
Hermed kan IC0 udregnes. Mellem hver fase og jord er der fasespændingen Uf lig med 230 V.
IC0 = Uf / XC0 = 230/3183 = 0,072 A
Endelig kan kabelsystemets samlede kapacitive ladestrøm IC ved en afledningsfejl beregnes:
IC = 3·IC0 = 3· 0,072 = 0,217 A
Diverse komponenter og brugsgenstande på nettet vil bidrage med yderligere lækstrømme. Endvidere kunne en for­vrænget spændingskurve med overharmoniske også forøge ladestrømmen. Hvis ovenstående udregning var udtryk for den jordfejlstrøm, der kunne opstå ved en afled­ningsfejl, ville en overgangsmodstand til jord for installationens jord­elek­trode på højst 230 ohm være påkrævet, jf tidligere nævnte formel.

Isolationsovervågningsudstyr

Ved IT-systemjording skal der etableres et isolationsovervågningsudstyr, jf SB-A6 § 413.1.5.4. Herved gives der meld­ing om en første afledningsfejl, der således kan afhjælpes inden en evt fejl nummer 2 ville få en del af systemet til at koble ud. Fejlindikationen kunne i princippet udføres med 3 glødelamper koblet i stjerne med en fase til hver lampe.


Til venstre en fejlfri installation. Med en spændingsforskel på 400 volt mellem faser­ne, vil der være 230 V over hver lampe i den viste fortrådning. Lampernes sammen­kobling (stjernepunktet) danner et kunstigt nulpunkt. Der er lys i alle 3 lamper. Til højre er der sket en afled­ningsfejl fra L3 til jord. Det betyder, at der nu er 0 volt over lampen forbundet til L3. Lampen lyser ikke. De øvrige lamper lyser stærkere end før, da der over dem nu er en spændingsforskel på 400 volt svarende til netspænd­ingen (L2-L3 og L1-L3).


Fremfor ovenstående lampesystem, udføres isolationsovervågning fx med en enhed, der påtrykker en spænding (DC eller lavfrekvent AC, fx 2,5 Hz) mellem jord og de spændingsførende ledere. Lækager i installationen til jord slutter strøm­kredsløbet og der vil opstå en strøm gennem enheden. Isolations­modstanden kan løbende bestemmes ud fra strøm­mens størrelse, og med yderligere nogle detek­torer omkring alle afgående strømkredse vil der også kunne gives meld­ing om, hvilken gruppe den er gal med når lækagestrømmen overskrider en fastsat grænse.

IT-systemjording og nulledere
Ovenstående lampesystem ville ikke give indikation af en afledningsfejl fra nullen, såfremt denne var fremført. Ifølge SB-A6 § 473.3.2.2 anbefales det kraftigt at undlade fremføring af nullederen ved IT-systemjording. Hvis den alligevel frem­føres skal der foretages overstrømsdetektion i nullederen. Det vil i praksis sige brug af 4-polede automatsikringer (efter sigende skelnes der mellem 4-polede automater og automater mærket 3-pol + N, hvor sidstnævnte type ikke detekterer overstrømme i nullen) eller maksimal­afbrydere. Smeltesikringsgrupper har af gode grunde aldrig en sikring i nullen.

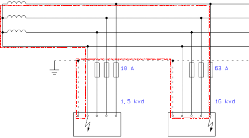
Hvis en IT-systemjordingsinstallation bliver udført med nullen fremført, og med overstrømsbeskyttelsesudstyr i form af smeltesikringer, kunne man forstille sig, at der på en brugsgenstand skete en fejl fra nul til stel (1. fejl), fx på en strøm­kreds med en 10 A gruppe med 1,5 mm2 ledning. Skulle der opstå en fejl nummer 2, en fase blev fx lagt til stel på en anden brugsgenstand, for eksemplets skyld en 63 A gruppe, ville førstnævnte 1,5 mm2 kabel være kortslutnings­beskyttet af en 63 A sikring med risiko for et for stort energigennemslip I2t i fejltilfælde (opvarmning af kablet). Fejlsløjfen ville gå fra fase til stel på den ene brugsgenstand, videre gennem beskyttelsesledere til den anden brugsgenstands stel og endelig nå nullen. Sløjfen, med fasespændingen som drivkraft, ville først blive brudt når 63 A sikringen smeltede pga den manglende overstrømsdetektion i nullen i 10 A gruppen. Hvis nul- og PE-leder er kortslutningsbeskyttet med de forskel­lige kombinationer af fejl der kan opstå, kunne der i princippet godt bruges smelte­sikringer, jf nævnte § 473.3.2.2.


Illustration af, at en 1,5 mm2 nul- og PE-leder på en 10 A gruppe kan være kort­slutningsbeskyttet af fx en 63 A sikring når nullederen er fremført i en IT-installation og der anvendes smeltesikringer til overstrømsbeskyttelse. Den røde streg angiver fejlstrømskredsløbet ved to isolationsfejl, henholdsvis nul og fase afledt til stel på to brugsgenstande.

Anden fejl ved IT-systemjording

Hvis en første fejl ikke bliver afhjulpet inden en fejl nummer 2 når at indtræde (en 2. afledningsfejl fra en spændings­fø­rende leder forskellig fra første fejl), skal der ske en øjeblikkelig udkobling ved fejl nummer 2.

Der skelnes mellem IT-systemjording, hvor udsatte dele er jordforbundet i grupper eller enkeltvis, og installationer, hvor alt er jordforbundet samlet.

Jordforbindelse gruppe- eller enkeltvis
I tilfælde af gruppe- eller enkeltvis jordforbindelse gælder betingelser for TT-systemjording ved udkobling af fejl nummer to. Fx en mak­simal udkoblingstid for smeltesikringer på 5 sekunder. Endvidere gælder for TT-systemer, jf SB-A6 § 413.1.4.2:
RA x Ia ≤ 50 V
Produktet af jordelektrodens overgangsmodstand til jord og modstanden i beskyttelseslederen til de udsatte dele RA og beskyttelsesudstyrets udløsestrøm Ia (ved 5 sekunder for smeltesikringer, ved øjeblikkelig udkobling for automater og maksimalafbrydere og mærkeudløsestrømmen IΔn i tilfælde af, at en fejlstrømsafbryder skal sørge for den automatiske udkobling), skal være mindre end eller lig med 50 volt.

Formlen minder om formlen nævnt ved betingelsen ved første fejl, og det er den samme jord­elektrodes overgangs­mod­stand til jord, der indgår i de to formler.

Jordforbindelse samlet
I varianten, hvor alt i installationen er indbyrdes jordforbundet, skal en række udkoblingstider, der dels afhænger af nominel spænding, dels afhænger af, om nullederen er fremført eller ikke, overholdes, jf SB-A6 § 413.1.5.6. Fx tiden 0,8 sekunder ved et 230/400 V system med nulleder fremført og 0,4 sekunder uden nulleder fremført. Da IT-systemjording i denne konfigu­ration efter første fejl betragtes som et TN-system, tillades i visse tilfælde tider op til 5 sekunder, jf SB-A6 § 413.1.3.5

Hvis nullederen ikke er fremført gælder følgende betingelse (undersøgelse af, om beskyttelse mod indirekte berøring ved anden fejl ved automatisk afbrydelse af forsyningen er opfyldt):

ZSU / (2 x Ia)
Impedansen i fejlsløjfen bestående af faselederen og beskyttelseslederen i strømkredsen, ZS, skal være mindre end eller lig med netspændingen U divideret med 2 gange den strøm Ia, der vil forårsage afbrydelse af strøm­kredsen inden­for tilladelig tid.

Faktoren 2 i formlen tager højde for, at fejlene sker i to forskellige strømkredse, hvorfor ledningslængden i fejl­kreds­en forøges (dog ikke nødvendigvis til det dobbelte, som faktoren 2 antyder). Faktoren tager ikke højde for even­tu­elle forskellige kabel­læng­der og tværsnit i de forskellige strøm­kredse, men hvis udsagnet er sandt for samtlige strømkredse (udgående fra samme tavle) vil mindst én af de fejlramte grupper ved fejl nummer to koble ud og man er tilbage ved situationen med kun én afledningsfejl i systemet.

Hvis nullederen er fremført ændres formlen til følgende:

Z'SU0 / (2 x Ia)
Impedansen i fejlsløjfen bestående af nullederen og beskyttelseslederen i strømkredsen, Z'S, skal være mindre end eller lig med fasespændingen U0 divideret med 2 gange den strøm Ia, der vil forårsage afbrydelse af strøm­kredsen indenfor tilladelig tid.

Netspændingen U er her skiftet ud med fasespændingen U0, da fejl nummer 2 med nullederen fremført risikerer at skulle brydes med denne spændingsforskel som drivkraft.

Interne links til emner i denne artikel: Eksterne links til emner i denne artikel:


Home | Copyright © 2002-2026 Cubus | cubusadsldk@gmail.com